歡迎來到浙江國盟電力成套設備有限公司企業官網!
咨詢熱線:0577-62710822TEL:0577-62710822
1010717522@qq.com

KYN28A-12戶內交流金屬鎧裝中置式開關設備系戶內金屬鎧裝抽出式開關設備(以下簡稱開關設備),系3-10kV三相交流 50Hz 單母線分段系統的成套配電裝置。主要用于發電廠,中小型發電機送電、工礦企事業配電以及電業系統的二次變電所的受電、送電及大型高壓電動機起動等。實行控制保護、監測之用,本開關設備滿足DL/T404-91,IEC298、GB3906等標準要求,具有防止帶負荷推拉斷路器手車、防止誤分合斷路器、防止接地開關處在閉合位置時關合斷路器、防止誤入帶電隔室、防止在帶電時誤合接地開關的聯鎖功能,既可配用VS1真空斷路器,又可配用ABB公司的VD4真空斷路器。實為一種性能優越的配電裝置。
使用環境條件
a. 周圍環境空氣溫度:上限,+40℃;下限,-10℃
b. 海拔:≤1000M
c. 相對環境濕度:日平均相以濕度不大于95%,月平均
相對濕度平均不大于90%
d. 地震:烈度不起過8 °
e. 周圍空氣應不受腐蝕性或可燃氣體、水蒸汽等明顯污染。
f. 無嚴重污穢及以常性的劇烈振動,嚴酷條件下嚴酷度設計滿足1類要求。
△ 特殊工作條件:
*在超過GB3906規定的正常的環境條件下使用時,由用戶和制造廠協商。
主要技術參數

結構簡介
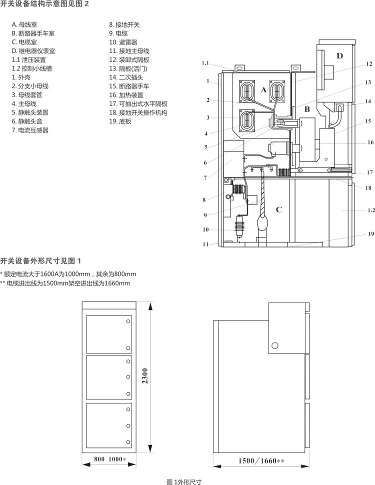
開關設備按GB390 6-91中的鎧裝式金屬封閉開關設備而設計。整體是由柜體和中置式可抽出部件(即手車)兩大部分組成,見圖1。柜體分四個單獨的隔室,外殼防護等級為IP4X,各小室和斷路器門打開時防護等級為IP2X。具有架空進出線、電纜進出線及其它功能方
案,經排列、組合后能成為各種方案形式的配電裝置。本開關設備可以從正面進行安裝調試和維護,因此它可以背靠背組成雙重排列和靠墻安裝,提高開關設備的安全性、靈活性,減少了占地面積。
手車
手車骨架也采用薄鋼板以CNC機床加工后組裝而成。手車與柜體絕緣配合機械聯鎖安全、可靠、靈活。根據用途不同,手車分為斷路器手車、電壓互感器手車、計量手車、隔離手車。各類手車按模數,積木式變化,同規格手車可以百分之百自由互換。手車在柜體內有斷開 位置/ 試驗位置和工作位置,每一位置都分別有定位裝置,以保證聯鎖可靠,必須按聯鎖防誤操作程序進行操作。各種手車均采用蝸輪、蝸桿搖動推進,退出,其操作輕便、靈活,適合于各種值班人員操作。手車當需要移開柜體時,用一只專用轉運車,便可以方便取出,進行各種檢查、維護;而且采用中置式,整個小車體積小,檢查、維護都極方便。斷路器手車上裝有真空斷路器及其它輔助設備。當手車用轉運車運入柜體斷路器室時,便能可靠鎖定在斷開位置/ 試 驗位置;柜體位置顯示燈便顯示其所在位置。而且只有完全鎖定后,才以有搖動推進機構,將手車推向工作位置。手車到工作位置后,推進手柄即搖不動,其對應位置顯示其所在位置,手車的機械聯鎖能可靠保證手車只有在工作位置或試驗位置,斷路器才能進行合閘;手車只有在分閘狀態,斷路器才能移動。 
外 殼
開關設備的外殼選用進口敷鋁鋅薄鋼板,經CNC機 床加工,并采取多重折邊工藝。這樣使整個柜體不僅具有精度高、很強的抗腐蝕與抗氧化作用,而且由采用多重折邊工藝,使柜體比其它同類設備柜體整體重量輕、機械強度高、外形美觀。柜體采用組裝結構,用拉鉚螺母和高強度的螺栓聯接而成。這樣使加工生產周期短、零部件通用性強、占地面積少,便于組織生產。
隔 室
開關設備的主要電氣元件都具有獨立的隔室,即:斷路器隔室、母線隔室、電纜隔室、繼電器儀表室。各隔室間防護等級都達到IP2X;除繼電器室外,其它三隔室都分別有其泄壓通道。電纜室可接多路電纜。
1、斷路器隔室 B
隔離兩側安裝了軌道,供手車15在柜內由隔離位置/試驗位置移動滑行至工作位置,靜觸頭盒6的 隔離板13(活 門)安裝在手車室的后壁上。當手車從斷開位置/試 驗位置移動到工作位置過程中,上下靜觸頭盒上的活門與手車聯動,同時自動打開;當反向移動時活門則自動閉合,直至手車退至一定的位置而安全覆蓋住 靜觸頭盒,形成有效隔離,同時由于上、下活門不聯動,在檢修時,可鎖定帶電側的活門,從而保證修維護人員不觸及帶電體,在斷路器室門關閉時,手車同樣能被操作,通過上門觀察窗,可以觀察隔室內手車所處位置、合、分閘顯示、儲能狀況。
2、母線隔室 A
主母線4是單臺拼接相互貫穿聯接,見圖6。通過支母線 2 和靜觸頭盒固定,主母線和聯絡母線為矩形載面的銅排;用于大電流負荷時采用雙根母排拼成。支母線通過螺栓聯接于靜觸頭盒 6和主母線,不需要其它支撐。對于特殊需要,母線可用熱縮套和聯接螺栓絕緣套和端帽覆蓋,相鄰柜母線用套管3固定。這樣聯接母線間所保留的空氣緩沖,在如果出現內部故障電弧時,能防止其貫穿熔化,套管3能有效把事故限制在隔離內而不向其它柜蔓延。
3、電纜隔室 C
開關設備采用中置式,因而電纜室空間較大。電流互感器7、接地開關8裝 在隔室后壁上,避雷器10安 裝于隔室后下部。將手車15和抽出式水平隔板17 移開后,施工人員就能從正面進入柜內安裝和維護。電纜室內的電纜連接導體,每相可并1-3根 單芯電纜,必要時每相可并接6根單芯電纜。聯接電纜的柜底配制開縫的可卸式非金屬封板或不導磁金屬封板,確保了施工方便。
4、繼電氣儀表室 D
繼電器儀表室內可安裝繼電保護元件、儀表、帶電監察指示器,以及特殊要求的二次設備??刂凭€路敷設在足夠空間的線槽內,并有金屬蓋板,可使二次線與高壓室隔離。其左側線槽是為控制小線的引進的引出預留的,開關柜內部的控制線敷設在右側,在繼電器儀表室的項板上還留有便于施工的小母線穿越孔,接線時,儀表室頂蓋板可以翻轉,便于小母線的安裝。

防止誤操作聯鎖裝置
開關設備內裝有安全可靠的聯鎖裝置,完全滿足五防的要求。
a. 儀表室門上裝有提示性的按鈕或者KK型轉換開關,以防止誤合、誤分斷路器。
b. 斷路器手車在試驗或工作位置時,斷路器才能進行合分操作,而且在斷路器合閘后,手車無法移動,防止了帶負荷誤推拉斷路器。
c. 僅當接地開關處在分閘位置時,斷路器手車才能從試驗/斷 開位置移至工作位置,僅當斷路器手車處于試驗/斷 開位置時,接地開關才能進行合閘操作(接地開關可帶電壓顯示裝置)。這樣實現了防止帶電誤合接地開關及防止了接地開關處在閉合位置時關合斷路器。
d. 接地開關處于分閘位置時,下門及后封板都無法打開,防止了誤入帶電間隔。
e. 斷路器手車確實在試驗或工作位置,而沒有控制電壓時,僅能手動分閘,不能合閘。
f. 斷路器手車在工作位置時,二次插頭被鎖定不能拔除。
g. 各柜體可裝電氣聯鎖。本開關設備還可以在接地開關操作機構上加裝電磁鐵鎖定裝置以提高可靠性,其訂貨按用戶的需求選擇。
帶電顯示裝置
如果用戶有用需求時,開關柜內可設有檢測一次回路運行的可選件即帶電顯示裝置。該裝置由高壓傳感器和可攜帶式顯示器兩單元組成,經用戶外接導電線連接為一體。該裝置不僅可以提示高壓回路帶電狀況,而且還可以與電磁鎖配合,實現強制閉鎖開關手柄、網門,達到防止帶電關合接地開關、防止誤入帶電間隔,從而提高配套產品的防誤性能。
泄壓裝置
在斷路器手車室,母線室和電纜室的上方均設有泄壓裝置,當斷路器或母線發生內部故障電弧時,伴隨電弧的出現,開關柜內部氣壓 升高,裝設在門上的特殊密封圈把柜前面封閉起來,頂部裝備的泄壓金屬柜將被自動打開,釋放壓力和排泄氣體,以確保操作人員和開關柜的安全。
二次插頭與手車的位置
開關設備上的二次線與斷路器手車的二次線的聯絡是通過手動二次插頭來實現的,二次插頭的動觸頭通過一個尼龍波紋伸縮管與斷路器手車相聯,二次靜觸頭座裝設在開關柜手車室的右上方。 斷路器手車只有在試驗/ 斷開位置時,才能插上和解除二次插頭,斷路器手車處于工作位置時由于機械聯鎖作用,二次插被鎖定,不能被解除,由于斷路器手車的合閘機構被電磁鎖定,斷路器手車在二次插未接通之前僅能進行分閘,所以無法使用其合閘。
防止凝露和腐蝕
為了防止在高溫度變化較大的氣候環境中產生凝露帶來之危險,在斷路器室和電纜室內分別裝設加熱器,以便在上述環境之中使用和防止腐蝕發生。
接地裝置
在電纜室內單獨設立有10×40mm2的接地銅排,此排能貫穿相鄰各柜,并與柜體良好接觸。此接地排供直接接地之元器件使用,同時由于整個柜體用敷鋁鋅板相拼聯,這樣使整個柜體都外在良好接地狀態之中,確保運行操作人員觸及柜體的安全。
使用與維護
開關柜在運行中,運行人員除應遵守有關規程外,還應該注意以下問題。
△操作程序
雖然開關設備設計有保證開關設備各部分操作程序正確的聯鎖,但是操作人員對開關設備部分的投入和退出,仍應嚴格按操作規程和本技術文件的要求進行,不應隨意操作,更不應在操作受阻時,不加分析強行操作,否則,容易造成設備損壞,甚至引起事故。
△ 無接地開關的斷路器的操作
A. 將斷路器可移開部件裝入柜體:斷路器小車準備由柜外推入柜內前,應認真檢查斷路器是否完好,有無漏裝部件,有無工具等雜物放在機構箱或開關內,確認無問題后將小車裝在轉運車上并鎖定好。將轉運車推到柜前,把小車升到合適位置,將轉運車前部定位鎖板插入柜體中隔板插口并將轉運車與柜體鎖定之后,打開斷路器小的鎖定鉤,將小車平穩推入柜體同時鎖定。當確認已將小車與柜體鎖定好之后,解除轉運車與柜體的鎖定,將轉運車推開。
B. 小車在柜內操作:小車在從轉運車裝入柜體后,即處于柜內斷開位置,若想將小車投入運行,首先使小車處于試驗位置,應將輔助回路插頭插好,若通電則儀表室面板上試驗位置指示燈亮,此時可在主回路未接通情況下對小車進行電氣操作試驗,若想繼續進行操作,首先必須把所有柜門關好,用鑰匙插入門鎖孔,把門鎖好,并確認斷路器處分閘狀態(見d條)。此時可將手車操作搖把插入中面板上操作孔內,順時針轉動搖把,直到搖把明顯受阻并聽到清脆的輔助開關切換聲,同時儀表室面板上工作位置指示燈亮,然后取下搖把。此時,主回路接通,斷路器處于工作位置,可通過控制回路對其進行合、分操作。若準備將小車從工作位置退出,首先,應確認斷路器已處于分閘狀態(見d條),插入手車操作搖把,逆時針轉動直到搖把受阻并聽到清脆的輔助開關切換聲,小車便回到試驗位置。此時,主回路已經完全斷開,金屬活門并閉。
C. 柜中取出小車:若準備從柜內取出小車,首先應確定小車已處于試驗位置,然后解除輔助回路插頭,并將動插頭扣鎖在手車架上,此時將運車推到柜前( 與把小車裝入柜內相同) ,然后將手車解鎖并向外拉出。當手車完全進入轉運車向扣拉出適當距離后,輕輕放下停穩,如手車要用轉運車運輸較長距離時,在推動轉運小車過程中要格外小心,以避免運輸過程中發生意外事故。
D. 斷路器在柜內的分、合閘狀態確認:斷路器的分合閘狀態可由斷路器的手車面板上分合閘指示牌及儀表室面板上分合閘指示燈兩方判定。若透過柜體中面板觀察玻璃窗看到手車面板上綠色的分閘指示牌是判定斷路器處于分閘狀態,此時如果輔助回路插頭接通電,則儀表面板上分閘指示燈亮。
若透過柜體中面板觀察玻璃窗看到手車面板上紅色合閘指示牌,則判定斷路器處于合閘狀態,此時如果輔助回路插頭接通電,則儀表面板上合閘指示燈亮。
△ 有接地開關的斷路器的操作
將斷路器手車推柜內和從柜內取出手車的程序,與無接地開關的斷路器柜的操作程序完全相同,僅當手車在柜內操作過程中和操作接地開關過程中要注意的地方敘述如下 :
a. 手車在柜內操作
當準備將手車推入工作位置時,除要遵守2b中 提請注意的諸項要求外,還應確認接地開關處于分閘狀態,否則下一步操作無法完成。
b. 合、分接地開關操作
若要合接地開關,首先應確定手車已退到試驗/ 斷開位置,并取下推進搖把,然后按下接地開關操作孔處連鎖彎板,插入接地開關操作手柄,順時針轉動90度,接地開關處于合閘狀態,若再逆時針轉動90度,便將接地開關分閘。
△ 一般隔離柜的操作
隔離手車不具備接通和斷開負荷電流的能力,因此在帶負荷的情況下不允許推拉手車,在進行隔離手車柜內操作時,必須保證首先將與之相配合的斷路器分閘(見2d),同時斷路器分閘后其輔助觸點轉換解除與之配合的隔離手車上的電氣聯鎖,只有這時才能操作隔離車。具體操作程序同操作斷路器手車相同。
△使用聯鎖的注意事項
a. 本產品的聯鎖功能是以機械聯鎖為主,輔之以電氣聯鎖實現其功能的,功能上能實現開關“五防”閉鎖的要求,但是操作人員不應因此而疏忽操作規程的要求,只有規程制度與技術手段相結合才能有效發揮聯鎖裝置的保障作用,防止誤操作事故的發生。
b. 本產品的聯鎖功能的投入與解除,大部分是在正常操作過程中同時實現的,不需要增加額外的操作步驟,如發現操作受阻(如 操作阻力 增大)應首先檢查是否有誤操作事故的發生。
c. 有些聯鎖因特殊需要允許緊急解鎖(如柜體下面板和接地開關的聯鎖)。緊急解鎖的使用必須慎重,不宜經常使用,使用時也要采取必要 的防護措施,一經處理完畢, 應立即恢復聯鎖原狀。
開關柜的檢修有關規程要求進行外,建議用戶特別注意以下幾點:
a. 按真空斷路器的安裝使用說明書的要求,檢查斷路器的情況,并進行必要的調整。
b. 檢查手車推進機構及其聯鎖的情況,使其滿足本說明書的有關要求。
c. 檢查主回路觸頭的情況,擦除動靜觸頭上陳舊油脂,察看觸頭有無損傷,彈簧力有無明顯變化,有無因溫度過高引起鍍層異常氧化現象,如有以上情況,應及時處理。
d. 檢查輔助回路觸頭有無異常情況,并進行必要的修整。
e. 檢查接地回路各部分的情況,如接地觸頭,主接地線及過門接地線等,保證其導電連續性。
f. 檢查各部分緊固件,如有松動,應及時緊固。
使用與維護
a. 產品合格證; b. 產品裝箱單; c. 產品出廠試驗報告;
d. 產品使用說明書; e. 設備清單 f. 二次接線圖
g. 出圖產品按供圖目錄及設備表供應;
h. 中置手車操作搖把,接地開關操作手柄及中置手車轉運車(合同臺量10臺以下,每5臺配一套;超過10臺,每增加10臺,加1套)